Page suivante
Page précédente
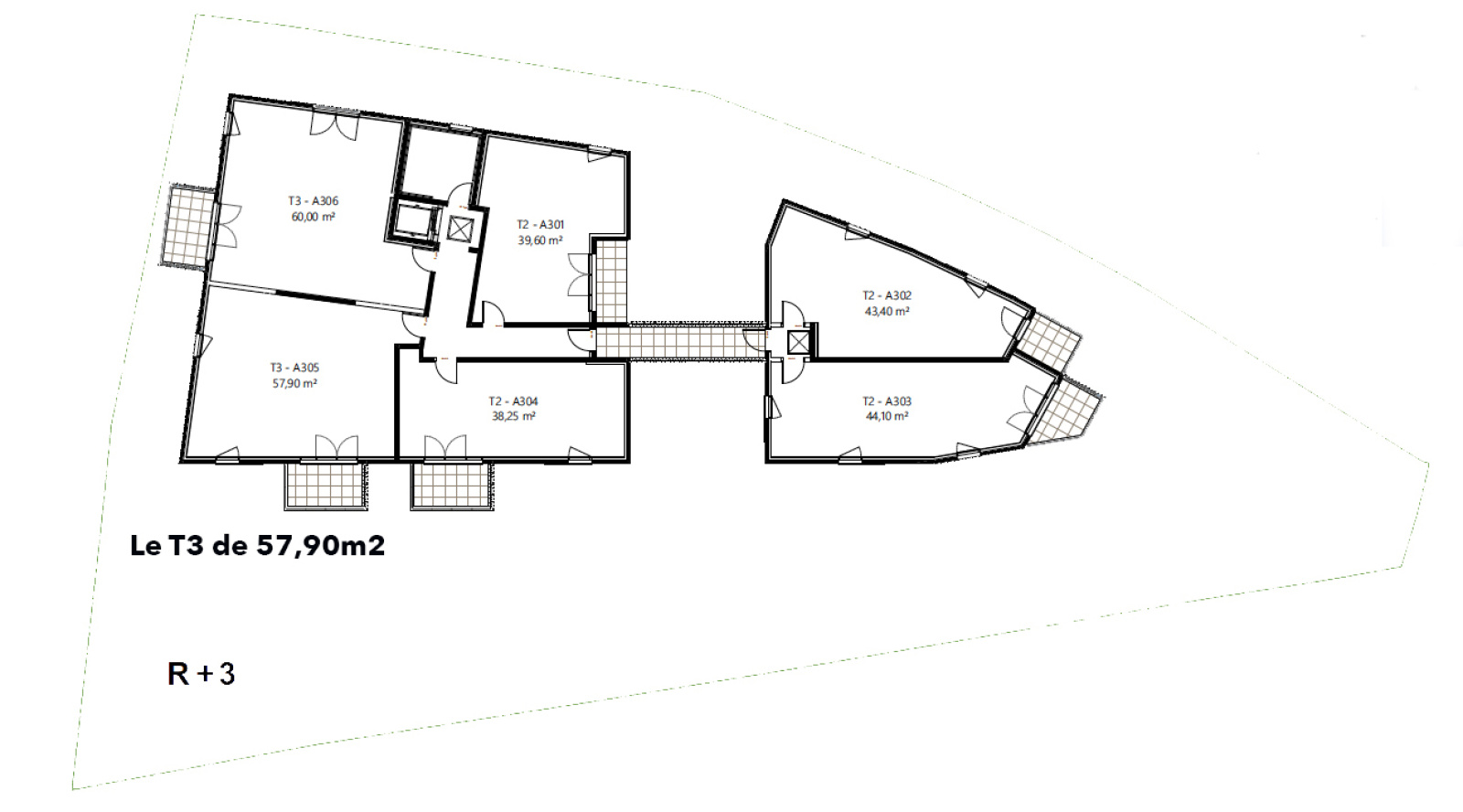
Cannes (06400)

Appartement 3 pièce(s) 2 chambre(s) 57.9 m²

1
Balcon
Ascenseur
CC*
Réf 166

Sur le territoire de Cannes-la-Bocca, cet appartement neuf aux belles dimensions pour un T3. Entrez rapidement en contact avec B.A.M. Immobilier pour en savoir plus. L'espace intérieur est composé d'une salle de bain, un espace cuisine aménagée, un coin salon de 22m² et un espace nuit comprenant 2 chambres. La superficie intérieure est de 57.9m² environ. L'appartement est neuf et attend ses premiers occupants. Il se trouve au dernier niveau sur 3 avec ascenseur. Le double vitrage assure la tranquillité des occupants. Pour prendre l'air, vous aurez accès à un charmant balcon de 6m² et en bas de la résidence un beau jardin, ce qui amène la superficie utile à 63.9m². Ce logement vous fait bénéficier de 2 emplacements de parking privatifs en enfilade. Le montant du loyer est fixé à 816 € par mois. Dépôt de garantie exigé s'élevant à 816 € + une provision mensuelle de 116 euros pour les charges.

L'appartement est livré le 17 octobre et pourra être normalement disponible le soir même. Il se situe dans le nouvel ensemble avenue Michael Jourdan.

IMPORTANT : il est impératif de nous envoyer votre dossier de location complet (Trois dernières fiches de paye ou deux derniers bilans + kbis, dernier avis d'imposition, pièces d'identités, justificatif de domicile, contrat de travail, attestation de l'employeur, 3 dernières quittances de loyer ou taxe foncière. Si vous avez une garantie de type Visale merci de nous la fournir également. Si besoin consultez la liste des pièces sur service-public.


Les informations sur les risques auxquels ce bien est exposé sont disponibles sur le site Géorisques

Bilan énergétique

Diagnostics énergetiques
A propos de ce bien Caractéristiques de ce bien
  • Surface 57,90 m²
  • séjour 22 m²
  • 2 chambre(s)
  • 1 salle(s) de bain
  • construit en 2023
  • cuisine américaine (semi-équipée)
  • exposition Sud-Est
  • 1 côté(s) mitoyen(s)
  • 3ème étage
  • 3 étage(s)
  • ascenseur
  • balcon
  • visiophone

Composition

Composition de ce bien

Etage 3

  • entrée 3.50 m²
  • salon/sejour 22.70 m²
  • chambre 12.40 m²
  • chambre 10 m²
  • WC 2.15 m²
  • salle de bain 5.20 m²
  • dégagement 1.95 m²

Financier

Informations financières
Dont état des lieux Non renseigné
Dépôt de garantie TTC 816 €
Charges locatives (Previsionnelles mensuelles les avec regularisation annuelle) 116 €
B.A.M. Immobilier Agence

* CC : Charges comprises